Osiedle Przyjaciół MMHome | 11 nowoczesnych domów z ogrodem

OFERTA

11 nowoczesnych domów z garażem w zabudowie szeregowej.

Aby sprawdzić szczegóły oferty, wybierz dom na planie klikając w niego.

Dotknij planu, aby sprawdzić szczegóły.

Domy szeregowe Kozienice

Osiedle Przyjaciół - Kozienice
DOM C4 REZERWACJA DOM C3 DOM C2 DOM C1 REZERWACJA DOM B3 DOM B2 SPRZEDANY DOM B1 DOM A4 DOM A3 DOM A2 DOM A1

DOM C4 REZERWACJA

Stan: REZERWACJA

Cena: 856 000,00 zł

Powierzchnia domu: 119,77 m2
Powierzchnia działki: 241,41 m2

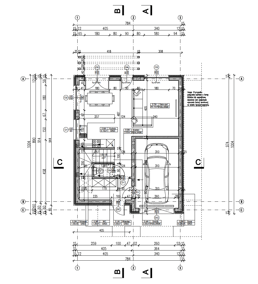
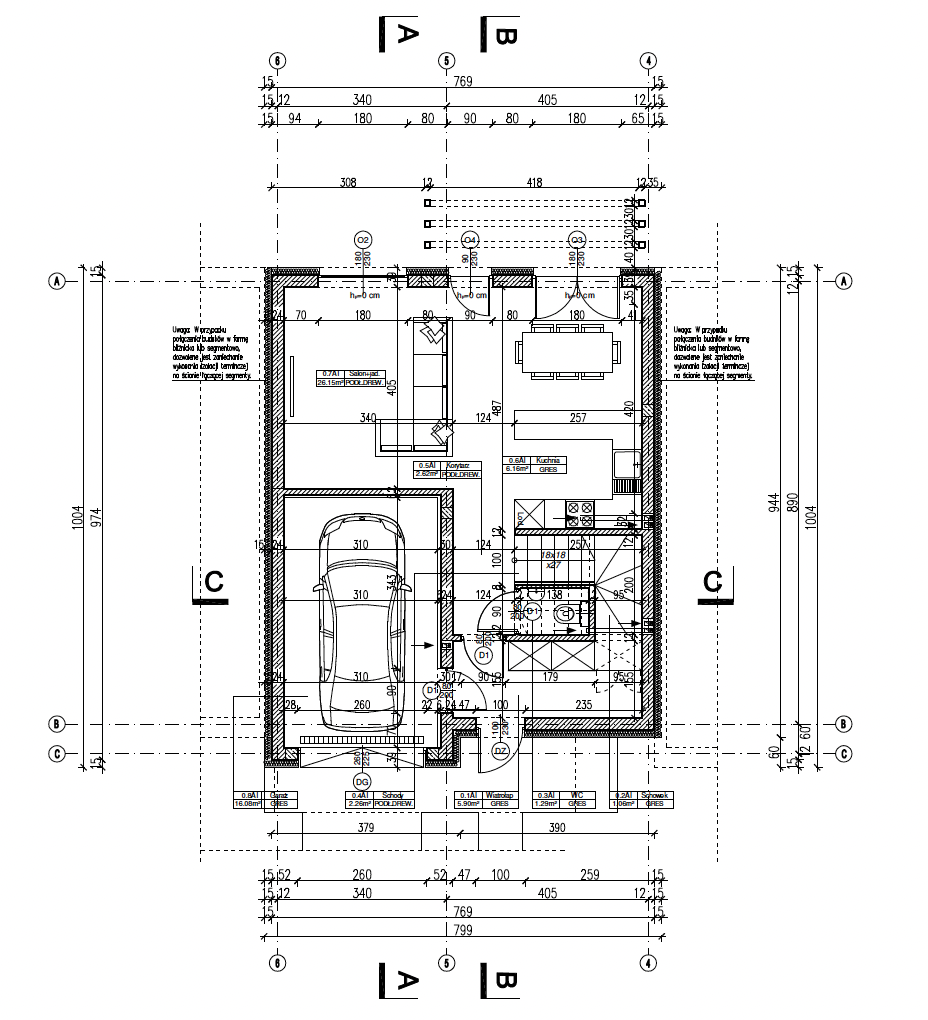
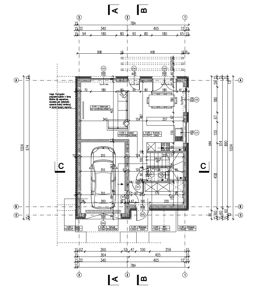
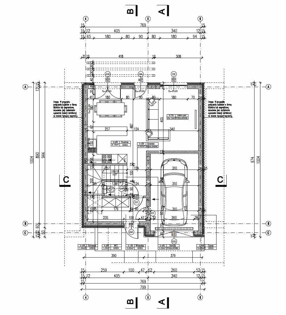
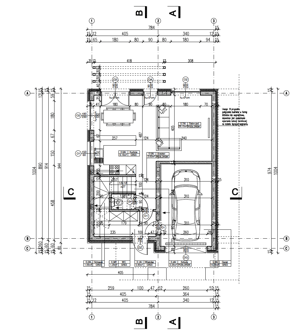
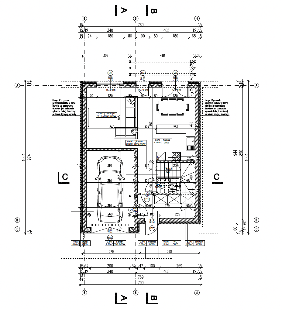
→ ZESTAWIENIE POWIERZCHNI PARTERU:
1. Wiatrołap 5,90 m2
2. Pomieszczenie gospodarcze 1,06 m2
3. WC 1,29 m2
4. Schody 2,26 m2
5. Korytarz 2,62 m2
6. Kuchnia 6,16 m2
7. Salon + Jadalnia 26,15 m2
8. Garaż 16,08 m2

Suma powierzchni parteru: 61,52 m2

 

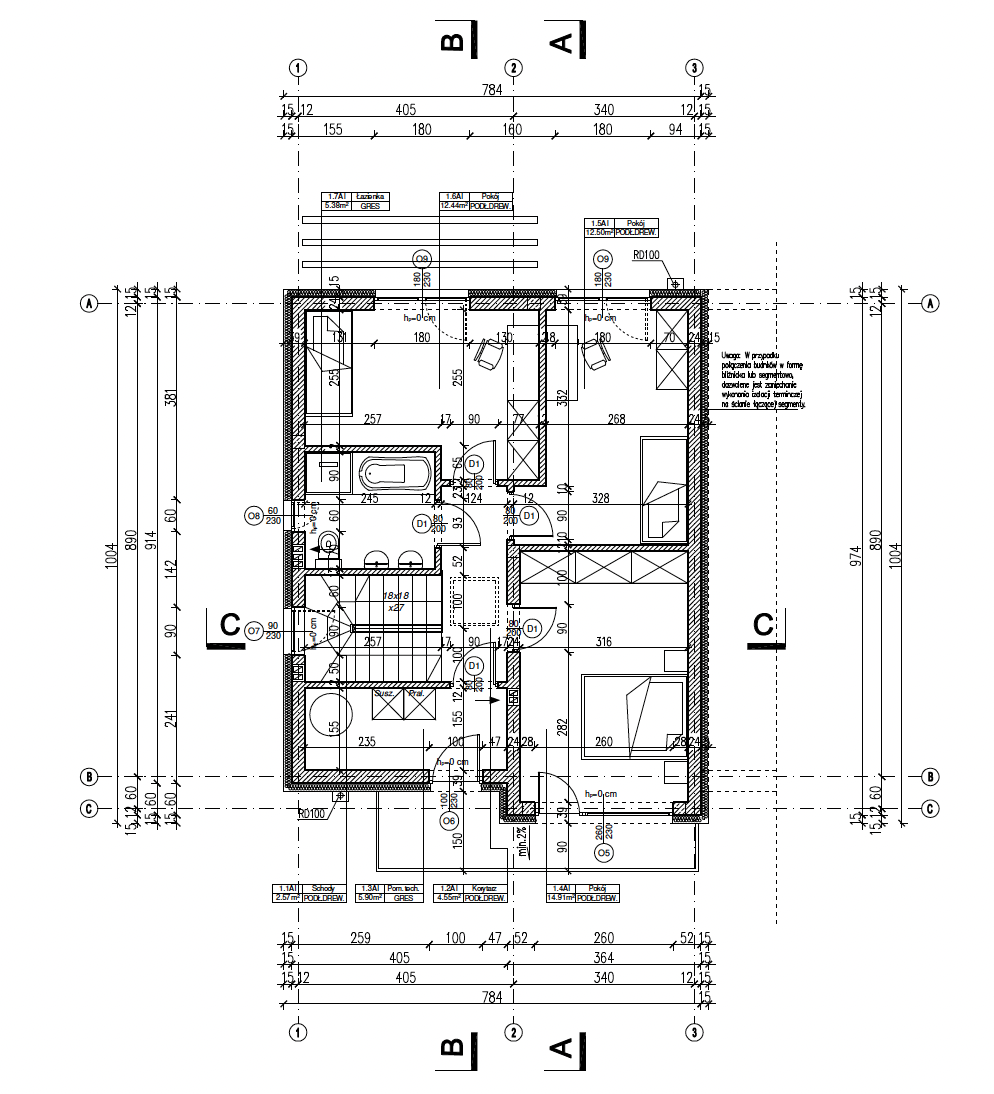
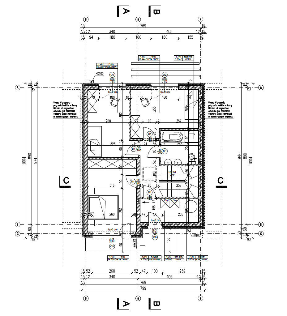
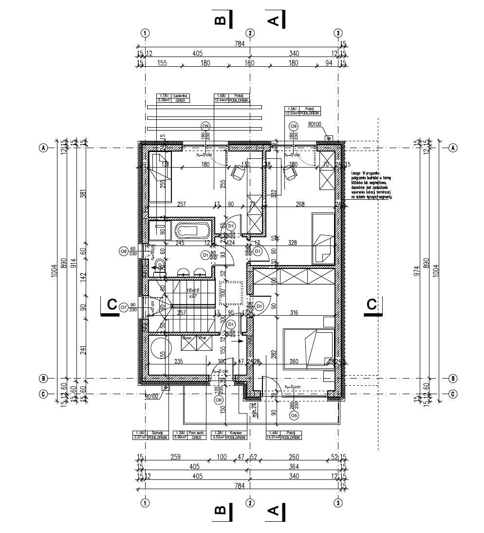
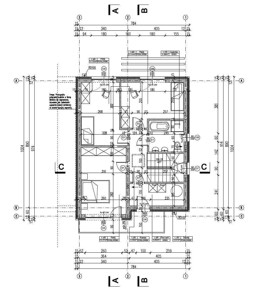
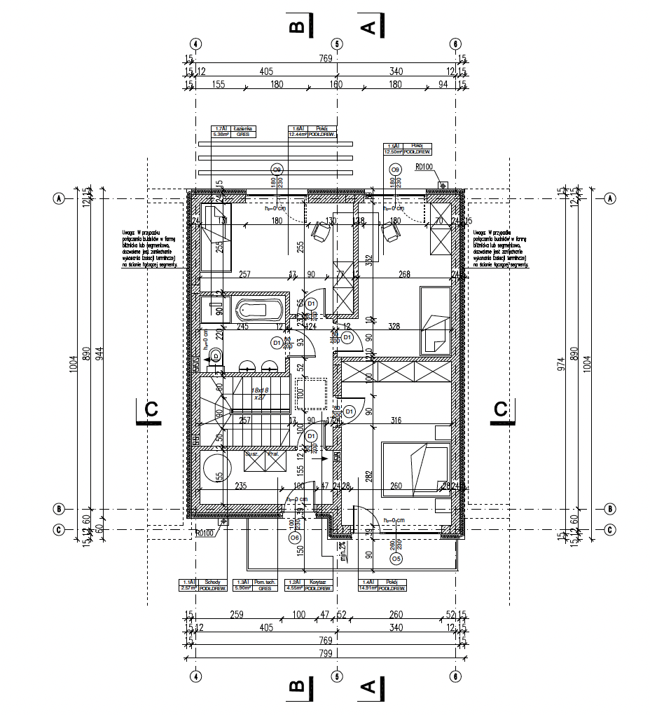
→ ZESTAWIENIE POWIERZCHNI PIĘTRA:
1. Schody 2,57 m2
2. Korytarz 4,55 m2
3. Pomieszczenie gospodarcze 5,90 m2
4. Pokój 14,91 m2
5. Pokój 12,50 m2
6. Pokój 12,44 m2
7. Łazienka 5,38 m2

Suma powierzchni piętra: 58,25 m2

 

→ KONSTRUKCJA:
Fundamenty ławy fundamentowe żelbetowe monolityczne
Ściany fundamentowe bloczki betonowe
Ściany konstrukcyjne pustaki silikatowe
Ściany działowe pustaki gazobetonowe
Stropy żelbetowe monolityczne
Dach stropodach
→ WYKOŃCZENIE:
Instalacje: wodno-kanalizacyjna, elektryczna, gazowa, pompa ciepła, wentylacji, telewizyjna, telefoniczna i internetowa, alarmowa
Wykończenie wewnętrzne lokalu: ścianki działowe, podkłady pod posadzki, tynki wewnętrzne na ścianach i sufitach, okna, drzwi wejściowe
Wykończenie zewnętrzne budynku: elewacja, brama garażowa, izolacja dachu, balustrady zewnętrzne, parapety zewnętrzne, dojazdy i dojścia do budynku, miejsca parkingowe, zagospodarowanie terenu, markiza sterowana automatycznie, oświetlenie zewnętrzne, ogrodzenie, przygotowanie pod bezinwazyjny montaż paneli fotowoltaicznych

DOM C3

Stan: DOSTĘPNE
Cena: 778 000,00 zł

Powierzchnia domu: 119,77 m2
Powierzchnia działki: 144,39 m2

→ ZESTAWIENIE POWIERZCHNI PARTERU:
1. Wiatrołap 5,90 m2
2. Pomieszczenie gospodarcze 1,06 m2
3. WC 1,29 m2
4. Schody 2,26 m2
5. Korytarz 2,62 m2
6. Kuchnia 6,16 m2
7. Salon + Jadalnia 26,15 m2
8. Garaż 16,08 m2

Suma powierzchni parteru: 61,52 m2

 

→ ZESTAWIENIE POWIERZCHNI PIĘTRA:
1. Schody 2,57 m2
2. Korytarz 4,55 m2
3. Pomieszczenie gospodarcze 5,90 m2
4. Pokój 14,91 m2
5. Pokój 12,50 m2
6. Pokój 12,44 m2
7. Łazienka 5,38 m2

Suma powierzchni piętra: 58,25 m2

 

→ KONSTRUKCJA:
Fundamenty ławy fundamentowe żelbetowe monolityczne
Ściany fundamentowe bloczki betonowe
Ściany konstrukcyjne pustaki silikatowe
Ściany działowe pustaki gazobetonowe
Stropy żelbetowe monolityczne
Dach stropodach
→ WYKOŃCZENIE:
Instalacje: wodno-kanalizacyjna, elektryczna, gazowa, pompa ciepła, wentylacji, telewizyjna, telefoniczna i internetowa, alarmowa
Wykończenie wewnętrzne lokalu: ścianki działowe, podkłady pod posadzki, tynki wewnętrzne na ścianach i sufitach, okna, drzwi wejściowe
Wykończenie zewnętrzne budynku: elewacja, brama garażowa, izolacja dachu, balustrady zewnętrzne, parapety zewnętrzne, dojazdy i dojścia do budynku, miejsca parkingowe, zagospodarowanie terenu, markiza sterowana automatycznie, oświetlenie zewnętrzne, ogrodzenie, przygotowanie pod bezinwazyjny montaż paneli fotowoltaicznych

DOM C2

Stan: DOSTĘPNE
Cena: 778 000,00 zł

Powierzchnia domu: 119,77 m2
Powierzchnia działki: 144,16 m2

→ ZESTAWIENIE POWIERZCHNI PARTERU:
1. Wiatrołap 5,90 m2
2. Pomieszczenie gospodarcze 1,06 m2
3. WC 1,29 m2
4. Schody 2,26 m2
5. Korytarz 2,62 m2
6. Kuchnia 6,16 m2
7. Salon + Jadalnia 26,15 m2
8. Garaż 16,08 m2

Suma powierzchni parteru: 61,52 m2

 

→ ZESTAWIENIE POWIERZCHNI PIĘTRA:
1. Schody 2,57 m2
2. Korytarz 4,55 m2
3. Pomieszczenie gospodarcze 5,90 m2
4. Pokój 14,91 m2
5. Pokój 12,50 m2
6. Pokój 12,44 m2
7. Łazienka 5,38 m2

Suma powierzchni piętra: 58,25 m2

 

→ KONSTRUKCJA:
Fundamenty ławy fundamentowe żelbetowe monolityczne
Ściany fundamentowe bloczki betonowe
Ściany konstrukcyjne pustaki silikatowe
Ściany działowe pustaki gazobetonowe
Stropy żelbetowe monolityczne
Dach stropodach
→ WYKOŃCZENIE:
Instalacje: wodno-kanalizacyjna, elektryczna, gazowa, pompa ciepła, wentylacji, telewizyjna, telefoniczna i internetowa, alarmowa
Wykończenie wewnętrzne lokalu: ścianki działowe, podkłady pod posadzki, tynki wewnętrzne na ścianach i sufitach, okna, drzwi wejściowe
Wykończenie zewnętrzne budynku: elewacja, brama garażowa, izolacja dachu, balustrady zewnętrzne, parapety zewnętrzne, dojazdy i dojścia do budynku, miejsca parkingowe, zagospodarowanie terenu, markiza sterowana automatycznie, oświetlenie zewnętrzne, ogrodzenie, przygotowanie pod bezinwazyjny montaż paneli fotowoltaicznych

DOM C1 REZERWACJA

Stan: REZERWACJA
Cena: 856 000,00 zł

Powierzchnia domu: 119,77 m2
Powierzchnia działki: 229,51 m2

→ ZESTAWIENIE POWIERZCHNI PARTERU:
1. Wiatrołap 5,90 m2
2. Pomieszczenie gospodarcze 1,06 m2
3. WC 1,29 m2
4. Schody 2,26 m2
5. Korytarz 2,62 m2
6. Kuchnia 6,16 m2
7. Salon + Jadalnia 26,15 m2
8. Garaż 16,08 m2

Suma powierzchni parteru: 61,52 m2

 

→ ZESTAWIENIE POWIERZCHNI PIĘTRA:
1. Schody 2,57 m2
2. Korytarz 4,55 m2
3. Pomieszczenie gospodarcze 5,90 m2
4. Pokój 14,91 m2
5. Pokój 12,50 m2
6. Pokój 12,44 m2
7. Łazienka 5,38 m2

Suma powierzchni piętra: 58,25 m2

 

→ KONSTRUKCJA:
Fundamenty ławy fundamentowe żelbetowe monolityczne
Ściany fundamentowe bloczki betonowe
Ściany konstrukcyjne pustaki silikatowe
Ściany działowe pustaki gazobetonowe
Stropy żelbetowe monolityczne
Dach stropodach
→ WYKOŃCZENIE:
Instalacje: wodno-kanalizacyjna, elektryczna, gazowa, pompa ciepła, wentylacji, telewizyjna, telefoniczna i internetowa, alarmowa
Wykończenie wewnętrzne lokalu: ścianki działowe, podkłady pod posadzki, tynki wewnętrzne na ścianach i sufitach, okna, drzwi wejściowe
Wykończenie zewnętrzne budynku: elewacja, brama garażowa, izolacja dachu, balustrady zewnętrzne, parapety zewnętrzne, dojazdy i dojścia do budynku, miejsca parkingowe, zagospodarowanie terenu, markiza sterowana automatycznie, oświetlenie zewnętrzne, ogrodzenie, przygotowanie pod bezinwazyjny montaż paneli fotowoltaicznych

DOM B3

Stan: DOSTĘPNE
Cena: 856 000,00 zł

Powierzchnia domu: 119,77 m2
Powierzchnia działki: 227,72 m2

→ ZESTAWIENIE POWIERZCHNI PARTERU:
1. Wiatrołap 5,90 m2
2. Pomieszczenie gospodarcze 1,06 m2
3. WC 1,29 m2
4. Schody 2,26 m2
5. Korytarz 2,62 m2
6. Kuchnia 6,16 m2
7. Salon + Jadalnia 26,15 m2
8. Garaż 16,08 m2

Suma powierzchni parteru: 61,52 m2

 

→ ZESTAWIENIE POWIERZCHNI PIĘTRA:
1. Schody 2,57 m2
2. Korytarz 4,55 m2
3. Pomieszczenie gospodarcze 5,90 m2
4. Pokój 14,91 m2
5. Pokój 12,50 m2
6. Pokój 12,44 m2
7. Łazienka 5,38 m2

Suma powierzchni piętra: 58,25 m2

 

→ KONSTRUKCJA:
Fundamenty ławy fundamentowe żelbetowe monolityczne
Ściany fundamentowe bloczki betonowe
Ściany konstrukcyjne pustaki silikatowe
Ściany działowe pustaki gazobetonowe
Stropy żelbetowe monolityczne
Dach stropodach
→ WYKOŃCZENIE:
Instalacje: wodno-kanalizacyjna, elektryczna, gazowa, pompa ciepła, wentylacji, telewizyjna, telefoniczna i internetowa, alarmowa
Wykończenie wewnętrzne lokalu: ścianki działowe, podkłady pod posadzki, tynki wewnętrzne na ścianach i sufitach, okna, drzwi wejściowe
Wykończenie zewnętrzne budynku: elewacja, brama garażowa, izolacja dachu, balustrady zewnętrzne, parapety zewnętrzne, dojazdy i dojścia do budynku, miejsca parkingowe, zagospodarowanie terenu, markiza sterowana automatycznie, oświetlenie zewnętrzne, ogrodzenie, przygotowanie pod bezinwazyjny montaż paneli fotowoltaicznych

DOM B2 SPRZEDANY

Stan: SPRZEDANY
Cena: 778 000,00 zł

Powierzchnia domu: 119,77 m2
Powierzchnia działki: 141,36 m2

→ ZESTAWIENIE POWIERZCHNI PARTERU:
1. Wiatrołap 5,90 m2
2. Pomieszczenie gospodarcze 1,06 m2
3. WC 1,29 m2
4. Schody 2,26 m2
5. Korytarz 2,62 m2
6. Kuchnia 6,16 m2
7. Salon + Jadalnia 26,15 m2
8. Garaż 16,08 m2

Suma powierzchni parteru: 61,52 m2

 

→ ZESTAWIENIE POWIERZCHNI PIĘTRA:
1. Schody 2,57 m2
2. Korytarz 4,55 m2
3. Pomieszczenie gospodarcze 5,90 m2
4. Pokój 14,91 m2
5. Pokój 12,50 m2
6. Pokój 12,44 m2
7. Łazienka 5,38 m2

Suma powierzchni piętra: 58,25 m2

 

→ KONSTRUKCJA:
Fundamenty ławy fundamentowe żelbetowe monolityczne
Ściany fundamentowe bloczki betonowe
Ściany konstrukcyjne pustaki silikatowe
Ściany działowe pustaki gazobetonowe
Stropy żelbetowe monolityczne
Dach stropodach
→ WYKOŃCZENIE:
Instalacje: wodno-kanalizacyjna, elektryczna, gazowa, pompa ciepła, wentylacji, telewizyjna, telefoniczna i internetowa, alarmowa
Wykończenie wewnętrzne lokalu: ścianki działowe, podkłady pod posadzki, tynki wewnętrzne na ścianach i sufitach, okna, drzwi wejściowe
Wykończenie zewnętrzne budynku: elewacja, brama garażowa, izolacja dachu, balustrady zewnętrzne, parapety zewnętrzne, dojazdy i dojścia do budynku, miejsca parkingowe, zagospodarowanie terenu, markiza sterowana automatycznie, oświetlenie zewnętrzne, ogrodzenie, przygotowanie pod bezinwazyjny montaż paneli fotowoltaicznych

DOM B1

Stan: DOSTĘPNE
Cena: 856 000,00 zł

Powierzchnia domu: 119,77 m2
Powierzchnia działki: 222,44 m2

→ ZESTAWIENIE POWIERZCHNI PARTERU:
1. Wiatrołap 5,90 m2
2. Pomieszczenie gospodarcze 1,06 m2
3. WC 1,29 m2
4. Schody 2,26 m2
5. Korytarz 2,62 m2
6. Kuchnia 6,16 m2
7. Salon + Jadalnia 26,15 m2
8. Garaż 16,08 m2

Suma powierzchni parteru: 61,52 m2

 

→ ZESTAWIENIE POWIERZCHNI PIĘTRA:
1. Schody 2,57 m2
2. Korytarz 4,55 m2
3. Pomieszczenie gospodarcze 5,90 m2
4. Pokój 14,91 m2
5. Pokój 12,50 m2
6. Pokój 12,44 m2
7. Łazienka 5,38 m2

Suma powierzchni piętra: 58,25 m2

 

→ KONSTRUKCJA:
Fundamenty ławy fundamentowe żelbetowe monolityczne
Ściany fundamentowe bloczki betonowe
Ściany konstrukcyjne pustaki silikatowe
Ściany działowe pustaki gazobetonowe
Stropy żelbetowe monolityczne
Dach stropodach
→ WYKOŃCZENIE:
Instalacje: wodno-kanalizacyjna, elektryczna, gazowa, pompa ciepła, wentylacji, telewizyjna, telefoniczna i internetowa, alarmowa
Wykończenie wewnętrzne lokalu: ścianki działowe, podkłady pod posadzki, tynki wewnętrzne na ścianach i sufitach, okna, drzwi wejściowe
Wykończenie zewnętrzne budynku: elewacja, brama garażowa, izolacja dachu, balustrady zewnętrzne, parapety zewnętrzne, dojazdy i dojścia do budynku, miejsca parkingowe, zagospodarowanie terenu, markiza sterowana automatycznie, oświetlenie zewnętrzne, ogrodzenie, przygotowanie pod bezinwazyjny montaż paneli fotowoltaicznych

DOM A4

Stan: DOSTĘPNE
Cena: 856 000,00 zł

Powierzchnia domu: 119,77 m2
Powierzchnia działki: 223,18 m2

→ ZESTAWIENIE POWIERZCHNI PARTERU:
1. Wiatrołap 5,90 m2
2. Pomieszczenie gospodarcze 1,06 m2
3. WC 1,29 m2
4. Schody 2,26 m2
5. Korytarz 2,62 m2
6. Kuchnia 6,16 m2
7. Salon + Jadalnia 26,15 m2
8. Garaż 16,08 m2

Suma powierzchni parteru: 61,52 m2

 

→ ZESTAWIENIE POWIERZCHNI PIĘTRA:
1. Schody 2,57 m2
2. Korytarz 4,55 m2
3. Pomieszczenie gospodarcze 5,90 m2
4. Pokój 14,91 m2
5. Pokój 12,50 m2
6. Pokój 12,44 m2
7. Łazienka 5,38 m2

Suma powierzchni piętra: 58,25 m2

 

→ KONSTRUKCJA:
Fundamenty ławy fundamentowe żelbetowe monolityczne
Ściany fundamentowe bloczki betonowe
Ściany konstrukcyjne pustaki silikatowe
Ściany działowe pustaki gazobetonowe
Stropy żelbetowe monolityczne
Dach stropodach
→ WYKOŃCZENIE:
Instalacje: wodno-kanalizacyjna, elektryczna, gazowa, pompa ciepła, wentylacji, telewizyjna, telefoniczna i internetowa, alarmowa
Wykończenie wewnętrzne lokalu: ścianki działowe, podkłady pod posadzki, tynki wewnętrzne na ścianach i sufitach, okna, drzwi wejściowe
Wykończenie zewnętrzne budynku: elewacja, brama garażowa, izolacja dachu, balustrady zewnętrzne, parapety zewnętrzne, dojazdy i dojścia do budynku, miejsca parkingowe, zagospodarowanie terenu, markiza sterowana automatycznie, oświetlenie zewnętrzne, ogrodzenie, przygotowanie pod bezinwazyjny montaż paneli fotowoltaicznych

DOM A3

Stan: DOSTĘPNE
Cena: 778 000,00 zł

Powierzchnia domu: 119,77 m2
Powierzchnia działki: 138,92 m2

→ ZESTAWIENIE POWIERZCHNI PARTERU:
1. Wiatrołap 5,90 m2
2. Pomieszczenie gospodarcze 1,06 m2
3. WC 1,29 m2
4. Schody 2,26 m2
5. Korytarz 2,62 m2
6. Kuchnia 6,16 m2
7. Salon + Jadalnia 26,15 m2
8. Garaż 16,08 m2

Suma powierzchni parteru: 61,52 m2

 

→ ZESTAWIENIE POWIERZCHNI PIĘTRA:
1. Schody 2,57 m2
2. Korytarz 4,55 m2
3. Pomieszczenie gospodarcze 5,90 m2
4. Pokój 14,91 m2
5. Pokój 12,50 m2
6. Pokój 12,44 m2
7. Łazienka 5,38 m2

Suma powierzchni piętra: 58,25 m2

 

→ KONSTRUKCJA:
Fundamenty ławy fundamentowe żelbetowe monolityczne
Ściany fundamentowe bloczki betonowe
Ściany konstrukcyjne pustaki silikatowe
Ściany działowe pustaki gazobetonowe
Stropy żelbetowe monolityczne
Dach stropodach
→ WYKOŃCZENIE:
Instalacje: wodno-kanalizacyjna, elektryczna, gazowa, pompa ciepła, wentylacji, telewizyjna, telefoniczna i internetowa, alarmowa
Wykończenie wewnętrzne lokalu: ścianki działowe, podkłady pod posadzki, tynki wewnętrzne na ścianach i sufitach, okna, drzwi wejściowe
Wykończenie zewnętrzne budynku: elewacja, brama garażowa, izolacja dachu, balustrady zewnętrzne, parapety zewnętrzne, dojazdy i dojścia do budynku, miejsca parkingowe, zagospodarowanie terenu, markiza sterowana automatycznie, oświetlenie zewnętrzne, ogrodzenie, przygotowanie pod bezinwazyjny montaż paneli fotowoltaicznych

DOM A2

Stan: DOSTĘPNE
Cena: 778 000,00 zł

Powierzchnia domu: 119,77 m2
Powierzchnia działki: 139,39 m2

→ ZESTAWIENIE POWIERZCHNI PARTERU:
1. Wiatrołap 5,90 m2
2. Pomieszczenie gospodarcze 1,06 m2
3. WC 1,29 m2
4. Schody 2,26 m2
5. Korytarz 2,62 m2
6. Kuchnia 6,16 m2
7. Salon + Jadalnia 26,15 m2
8. Garaż 16,08 m2

Suma powierzchni parteru: 61,52 m2

 

→ ZESTAWIENIE POWIERZCHNI PIĘTRA:
1. Schody 2,57 m2
2. Korytarz 4,55 m2
3. Pomieszczenie gospodarcze 5,90 m2
4. Pokój 14,91 m2
5. Pokój 12,50 m2
6. Pokój 12,44 m2
7. Łazienka 5,38 m2

Suma powierzchni piętra: 58,25 m2

 

→ KONSTRUKCJA:
Fundamenty ławy fundamentowe żelbetowe monolityczne
Ściany fundamentowe bloczki betonowe
Ściany konstrukcyjne pustaki silikatowe
Ściany działowe pustaki gazobetonowe
Stropy żelbetowe monolityczne
Dach stropodach
→ WYKOŃCZENIE:
Instalacje: wodno-kanalizacyjna, elektryczna, gazowa, pompa ciepła, wentylacji, telewizyjna, telefoniczna i internetowa, alarmowa
Wykończenie wewnętrzne lokalu: ścianki działowe, podkłady pod posadzki, tynki wewnętrzne na ścianach i sufitach, okna, drzwi wejściowe
Wykończenie zewnętrzne budynku: elewacja, brama garażowa, izolacja dachu, balustrady zewnętrzne, parapety zewnętrzne, dojazdy i dojścia do budynku, miejsca parkingowe, zagospodarowanie terenu, markiza sterowana automatycznie, oświetlenie zewnętrzne, ogrodzenie, przygotowanie pod bezinwazyjny montaż paneli fotowoltaicznych

DOM A1

Stan: DOSTĘPNE
Cena: 856 000,00 zł

Powierzchnia domu: 119,77 m2
Powierzchnia działki: 254,22 m2

→ ZESTAWIENIE POWIERZCHNI PARTERU:
1. Wiatrołap 5,90 m2
2. Pomieszczenie gospodarcze 1,06 m2
3. WC 1,29 m2
4. Schody 2,26 m2
5. Korytarz 2,62 m2
6. Kuchnia 6,16 m2
7. Salon + Jadalnia 26,15 m2
8. Garaż 16,08 m2

Suma powierzchni parteru: 61,52 m2

 

→ ZESTAWIENIE POWIERZCHNI PIĘTRA:
1. Schody 2,57 m2
2. Korytarz 4,55 m2
3. Pomieszczenie gospodarcze 5,90 m2
4. Pokój 14,91 m2
5. Pokój 12,50 m2
6. Pokój 12,44 m2
7. Łazienka 5,38 m2

Suma powierzchni piętra: 58,25 m2

 

→ KONSTRUKCJA:
Fundamenty ławy fundamentowe żelbetowe monolityczne
Ściany fundamentowe bloczki betonowe
Ściany konstrukcyjne pustaki silikatowe
Ściany działowe pustaki gazobetonowe
Stropy żelbetowe monolityczne
Dach stropodach
→ WYKOŃCZENIE:
Instalacje: wodno-kanalizacyjna, elektryczna, gazowa, pompa ciepła, wentylacji, telewizyjna, telefoniczna i internetowa, alarmowa
Wykończenie wewnętrzne lokalu: ścianki działowe, podkłady pod posadzki, tynki wewnętrzne na ścianach i sufitach, okna, drzwi wejściowe
Wykończenie zewnętrzne budynku: elewacja, brama garażowa, izolacja dachu, balustrady zewnętrzne, parapety zewnętrzne, dojazdy i dojścia do budynku, miejsca parkingowe, zagospodarowanie terenu, markiza sterowana automatycznie, oświetlenie zewnętrzne, ogrodzenie, przygotowanie pod bezinwazyjny montaż paneli fotowoltaicznych

11 nowoczesnych domów

od 138 do 254 m2 powierzchni działki

16 m2 garażu